Details in the database. Dependences
The details can be connected with each other. How does it happen By setting the parametric and geometric dependences. The parametric dependence – an expression meaning that one parameter of one object equals one parameter or the arithmetic expression of the parameters of another object. For example: the diameter of the bolt thread should be equal to the diameter of the screw thread which it is connected with.
The thread diameter parameter (dr) of the screw is equal to the thread diameter parameter (dr) of the bolt (dr=dr).
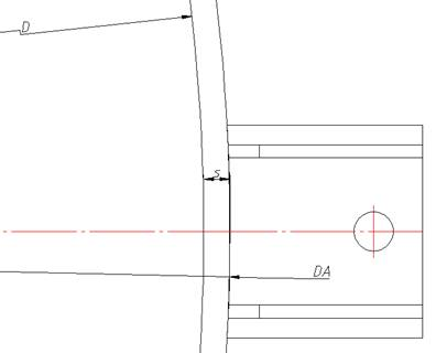
When setting the support for the shell, the dependence of the parameters’ arithmetic expression is set: the diameter of the support is equal to the sum of two shell widths and the inner diameter of the shell. DA=D+2*s.
When setting the dependences there are a child and parent objects, the dependences can be one-directed and two-directed. The one-directed dependences affect only the child object (change of the parent object affects the child object, but change of the child object does not affect the parent object), the two-directed dependences affect two objects, change of one object affects the other object.
The geometric dependence between the objects is realized by movement and reorientation of the objects. The new position of the object is calculated according to the new position of the object’s planes.
The views of geometric dependences:
INSERT – the combination of the insertion points and planes’ vectors. The function has a parameter – offset – the distance between planes’ points of the detail along the OX axis.
MATE – the collinearity of the direction vectors if the abscissae of the details are relatively equal. There is a parameter – distance along the OX axis.
AXIS – the combination of the direction vectors with the unfixed coordinates along the OX axis. The parameter of the dependence – distance along OY axis.
The combination along direction (angular dependence) – the collinearity of the direction vectors with the unfixed relative coordinates.
The geometric dependences can be codirectional and opposite directional according to the orientation of the local vector of the OX axis.
There is no need to connect all objects with all objects and that is why it is necessary to set the dependences automatically. The classification of the objects is set to define what details should connect with each other. The classification is made according to the number class (used in the program tools) and the public parameters of the object. These are strTheName, strTheType and strTheSubType variables. To connect a bolt and a screw there is a check of these variables and, if they coincide, the dependence is set. Fasteners are connected only with fasteners, not with pipe fittings, but both types have the thread diameter parameter. Every object has a unique identifier, used for the insertion from the browser.
Suppression contour and display order
Graphics, like the standard details from the database, have a suppression contour – a closed area, hiding the graphical primitives and other details. (For example, the contour of the screw overlaps a line of the bolt.).
Display order is set by the rZOrder variable. Details with an rZOrder value greater than the rZOrder value of other details will overlap them. This property works with the intervals divisible by 2000. The object from the database can have a suppression contour formed with its outer boundary, a specified suppression contour or have no contour at all.







Post your comment on this topic.